Khu đô thị mới An Hưng

Cơ sở pháp lý
- Quyết định số 2679/QD-UBND ngày 31/12/2007 của UBND tỉnh Hà Tây về việc phê duyệt quy hoạch chi tiết tỷ lệ 1/500 Khu đô thị mới An Hưng, Thành phố Hà Đông.
- Quyết định số 178/QĐ-UBND này 23 tháng 01 năm 2008 UBND tỉnh Hà Tây về việc giao Công ty cổ phần đầu tư đô thị An Hưng (Liên doanh Công ty hỗ trợ người tàn tật Hồng Hà, Công ty Cổ phần đầu tư phát triển trang trại Sông Nhuệ, Công ty cổ phần thương mại miền Bắc) làm chủ đầu tư và thực hiện dự án đầu tư xây dựng khu đô thị mới An Hưng , tỉnh Hà Tây.
Vị trí dự án
Khu đô thị mới An Hưng nằm giáp sông La Khê, gắn kết trực tiếp với các khu dân cư liền kề và vùng mở rộng đô thị mới phía Bắc, quận Hà Đông - Hà Nội.
Khu đô thị An Hưng nằm trong ranh giới quản lý hảnh chính phường Văn Khê và xã Dương Nội.
- Phía Bắc: Giáp khu đất nông nghiệp xã Dương Nội.
- Phía Nam: Giáp khu dân cư Văn Khê.
- Phía Tây: Giáp sông La Khê
- Phía Đông: Giáp Khu đô thị Bắc La Khê
Vị trí dự án
Mô tả dự án
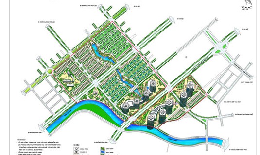
Dự án khu đô thị mới An Hưng có diện tích 31,53 ha bao gồm tổ hợp các khu công trình dịch vụ hỗn hợp văn phòng, nhà ở, khu vui chơi giải trí, trung tâm thương mại, dịch vụ khách sạn cao cấp, văn phòng làm việc, cho thuê...Khu đô thị mới An Hưng là khu đô thị mới áp dụng công nghệ tiên tiến, công nghệ thông tin trong các toà nhà cao tầng phục vụ tốt các hoạt động của con người.
Phân khu chức năng :

Phối cảnh tổng thể
+ Khu trung tâm thương mại - dịch vụ - văn phòng và nhà ở cao cấp: Diện tích 80.814 m2 bao gồm các toà cao tầng nằm trên mặt đường Lê Văn Lương kéo dài, chiều cao của các toà nhà 30- 35 tầng mật độ xây dựng 30 -40%, kiến trúc công trình hiện đại và đa dạng. Trong đó các chức năng dịch vụ thương mại và siêu thị từ tầng 1 đến tầng 6, các văn phòng cao cấp và các căn hộ chung cư hiện đại cao cấp được bố trí từ tầng 7 trở lên. Lõi khu đất là vườn cây xanh, cảnh quan và sân chơi và vườn trẻ, trường học tạo nên không gian sinh hoạt cộng đồng gắn kết các khu chức năng.
+ Khu nhà ở thấp tầng: Diện tích 100.770,8 m2 xây dựng không gian nhà ở thấp tầng trong đó đất nhà ở liền kề thấp tầng 50.118,1 m2, nhà ở biệt thự 50.652,7m2. Đất nhà ở biệt thự diện tích trung bình 200-250m2/căn, đất nhà ở liền kề diện tích trung bình 85-100m2/căn.
+ Công viên cây xanh - cây xanh sinh hoạt cộng đồng: DT 17091,1 m2 bố trí hệ thống vườn tược, vườn nghệ thuật và không gian khoáng đạt cải thiện vi khí hậu cho đô thị.
+ Công trình công cộng: Diện tích 16.685 m2 thiết kế xây dựng trường tiểu học và công trình dịch vụ đáp ứng cho dân cư sống trong khu đô thị.
Tiến độ dự án
Đến tháng 9/2010 cơ bản hoàn thành hạ tầng kỹ thuật, đang xây dựng hầm của chung cư cao tầng