TIN MỚI!

Đọc nhanh >>

VN-Index:

GTGD: tỷ VNĐ

HNX-Index:

GTGD: tỷ VNĐ

Khu đô thị Văn La - Văn Khê

Khu đô thị Văn La - Văn Khê toạ lạc trên khu đất có vị trí thuận lợi về giao thông, với quy mô 12ha và tổng mức đầu tư 1300 tỷ đồng do Công ty CP Đầu tư phát triển Đô thị và KCN Sông Đà làm chủ đầu tư.

Tỉnh thành Hà Nội (*) Tổng mức đầu tư 1300 Tỷ VNĐ
Quận huyện Hà Đông, Khởi công 2007
Phường xã Văn La,Văn Khê Dự kiến hoàn thành 2009
Địa chỉ Đường Quang Trung, xã Văn La, Văn Khê, Hà Đông, Hà Nội Chủ đầu tư Công ty CP Đầu tư phát triển Đô thị và KCN Sông Đà,
Quy mô 12.0133 ha Đơn vị thi công

Khu đô thị Văn La - Văn Khê (1)

Phối cảnh dự án

Vị trí của dự án

Khu đô thị Văn La - Văn Khê (2)


* Khu nhà ở Văn La- Văn Khê nằm ở vị trí trung tâm của quận Hà Đông trong quy hoạch chung đô thị đến năm 2020.

* Khu đất có vị trí thuận lợi về giao thông (nằm trên trục đường chính Quang Trung của quận Hà Đông – Quốc lộ 6 – tuyến đường huyết mạch nối liền Hà Nội và các tỉnh Tây Bắc thủ đô) nơi có tốc độ đô thị hóa cao với hàng loạt các dự án trọng điểm về Hành chính, đô thị, thương mại, tài chính và dịch vụ như: Trung tâm hành chính quận Hà Đông, Khu đô thị mới Văn Phú, Gần nhà ga đường sắt trên cao Hà Nội Hà Đông... Với hàng loạt các dự án trên đã tạo ra một quần thể đô thị mới liên kết chặt chẽ, có hệ thống hạ tầng đồng bộ, hạ tầng xã hội hoàn chỉnh.


Khu đô thị Văn La - Văn Khê (3)

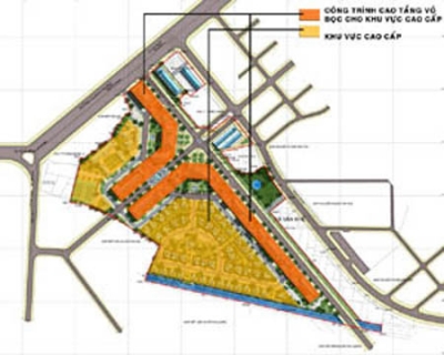
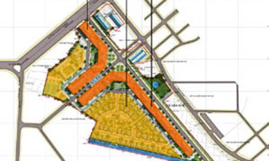
Quy mô dự án

* Quy mô: 12,0133ha

* Địa điểm: Xã Văn Khê, Quận Hà Đông, TP.Hà Nội.

* Giá trị : 1,300 tỷ

* Tổng vốn đầu tư hơn 50 triệu USD trên diện tích 12,0133 ha, khu nhà ở Văn La - Văn Khê mang phong cách kiến trúc kiến trúc Châu Âu được quy hoạch đồng bộ, hiện đại bao gồm công viên cây xanh, các cơ quan, công sở, trường học, khu vui chơi, giải trí, sân ten nít và các dịch vụ tiện ích.... Với các sản phẩm đa dạng phục vụ cho nhu cầu khác nhau của khách hàng như khu dân cư, khu chung cư cao tầng, khu biệt thự cao cấp.

Khu đô thị Văn La - Văn Khê (4)

* Khu nhà ở Văn La - Văn Khê là tổ hợp các công trình thương mại, công trình công cộng, văn phòng và nhà ở có cơ cấu hiện đại, đồng bộ về hệ thống kỹ thuật, có đủ tiêu chuẩn đáp ứng nhu cầu về văn phòng,  nhà ở; góp phần cải tạo mỹ quan đô thị và môi trường sống trong khu vực.

Cơ cấu sử dụng đất

Khu ở Chung cư cao tầng : 27.270m2.
Khu Biệt thự : 16.395m2.
Khu xây dựng nhà ở liên kế : 1.850m2.
Khu các công trình công cộng : 9.203m2.
Khu các công năng khác : 6.5416m2.

Tiến độ thực hiện dự án

Đến T12/2009 Chưa triển khai hạ tầng kỹ thuật

Trở lên trên